Nautical Club
Macedonia, 2024
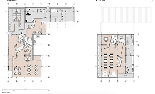
An adaptive reuse project for a new Nautical Club in Ohrid, transforming a long-abandoned building into a vibrant social hub. The project creates communal spaces that reconnect the surrounding districts with the city center, serving club members, local residents, and tourists. The new design respects and preserves the building’s original character while adapting it to contemporary needs.
The design concept emerges from the idea of merging tradition with modernity, echoing the original architect Boris Chopin’s approach. The guiding theme, ‘con-fusion', expresses the interplay between past and present. What initially appears as confusion becomes resolved through fusion.
Conceptual lines derived from Ohrid’s landmarks converge at the center of the building, creating guiding axes throughout the project. These lines are positioned within the layout so that they seamlessly merge into the building’s spatial organization.
*The resolution of the plans has been intentionally lowered.




As per the project request, the pool (site sketch no. 5) functions as a lap pool with an additional recreational extension. Due to Ohrid’s climate, a sustainable and low-cost heating solution has been developed. Water is pumped through a filter and directed upward by control valves, while a separate return line with check valves routes it back to the pool, ensuring proper flow and efficient operation.










